发布时间:2023-12-07 14:46:41 浏览量:258次
对于目前的装饰企业来说,行业大环境的不景气造成的“僧多粥少”现象下,什么最重要?——竞争力!不只是管理水平、工程成本的竞争,深化设计就是最核心的竞争力!
只懂得画图施工已经无法满足甲方要求,如今的深化设计师需要懂得的东西越来越多,项目经理与装企老板们必须要重视深化设计的核心价值!

贯穿全局的装饰EPC深化设计流程△
01
深化设计在施工过程中
如何做到降低成本、提高效率
在前期放线工作中,可以通过深化设计来保证放线的准确性与及时性:
01
根据深化后图纸放线来保证效率
放线是根据深化后的图纸进行的,所有尺寸都是可实施的现场精准尺寸。

放线结束后,面层材料下单尺寸就已经控死,可以提前下单。做完这一步,只需要督促现场按照预控的方案实施就可以了。

深化在现场尺寸复核时
班组即可对现场控制线及标高线进行放线工作△

完成平面图纸深化后,交底班组基层放线△
在保证放线工作的准确与及时之后,深化设计要把面层材料下单前置到前期策划阶段,以下以酒店客房卫生间的石材下单与顶角线条下单为例重点说明:
02
面层下单时间前置到前期策划
• 举例:酒店客房卫生间墙角石材深化、密拼做法
下图两种做法,采取左边做法更加节省成本:

按照客房8个阴角计算:
2.4m(标高)*0.02m(放的余量)*8个角=0.384
按照客房单套墙面面积 26㎡:0.384/26≈1.5%(石材多出损耗)
即每套客房,仅石材单项每间就能损失 1.5% 的纯利润!

• 举例:线条的外拼角、内拼角做法
如果深化设计没有办法将所有的图纸吃透、所有的放线搞透、是根本下不准石材的。
产生的结果就是“只能下长一点,工人现场切割、不仅费材料、人工费用成倍增加”。


深化设计中期配合绘制基层做法,配合现场放线,为产品化、批量加工打基础:
03
模块化施工深化,降本提效
• 吊顶模数化加工

由于天花吊顶造型长宽尺寸一致,可以定好基层尺寸,批量化加工和安装。

使班组施工更加方便,同时又能控制天花石膏线造型的基层尺寸,以便于厂家深化下单和后期安装。




天花龙骨排布图成果:按实测算出户型的基层材料用量,设定采购总量及班组领用数量,控制材料损耗。



• 卫生间钢架模数化加工
因项目客房标准间(单人/双人)的卫生间是一样的,可以进行批量产品化加工,每块钢架焊制若干。由专人负责半成品加工,专人负责半成品安装。

批量加工:灌浆施工与封板施工△

钢架隔墙做法△
02
深化设计在经营方面
为项目成本管控、利润保驾护航
深化经营主要通过哪些方面进行?
1)合同性质
单价合同:固定单价(内简外简)、可调单价(外复内简)
总价合同:固定总价(内简外复)、可变总价(内简外复)
费率合同:清单及图纸均不详,边做边签价(内简外复)
2)清单交底
深化设计需要知道清单中分项工程亏盈情况,哪些是要重点关注的分项,规避亏损项,增加盈利项,可以借鉴不平衡报价。
3)设计对接
了解设计公司信息,对接人信息,设计意图,设计重点是什么。
4)信息互通
各类商务的约定、现场实际勘查的数据、各类供应商生产水平、基层材料的使用选择。

01
工艺优化:反支撑替代转换层

原施工蓝图△
吊顶的高度超过 1500 就要做转换层,一般像只是多了几十公分,像 1600 或 1700,完全可以做反支撑,钢架直接打到龙骨上,来替代一个转换层,如下图:

优化后图纸△
保证施工质量的前提与甲方说明, 双方共同降低项目造价。
02
工艺优化:现场组装代替定制
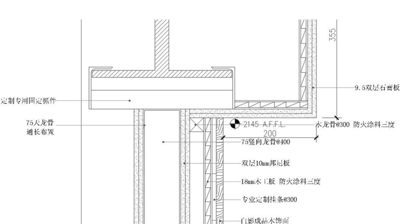
钢结构梁下隔墙节点在图纸深化过程中,因是钢结构梁,要求顶面基层不破坏钢架构防火层,定制专用钢结构固定爪件。

可根据施工现场,采用5#角钢焊制、组装成固定爪件,代替定制专用钢结构固定爪件。
03
简化施工:分片、分组安装
大型吊灯预埋钢架节点在图纸深化过程中,要求专业分包单位配合项目部深化,计算出灯具荷载重量,对钢架的间距、规格详细标注,考虑灯具和设备的检修,复杂的异型灯具需找准正负坐标点。


可根据施工现场简化施工,分片、分组安装,在不影响施工质量前提下可适当减少钢架含量。
04
下单排版:石材重新排版分割

原施工蓝图△
原设计要求石材背景墙分六块,每块板面很大,还要对纹,运输、安装成本非常高。重新排板后多分割一路板,来降低成本,如下图:

优化后图纸△
项目到底赚不赚钱很大因素取决于木石铜的经营情况,因此在进行主材损耗经营时,主要是从“木石铜”材料来做:
01
石材深化下单
• 核对物料编号及石材种类


总平面图物料表对应石材种类核对△
• 核对节点大样及收口关系


客房走道地面石材与墙面木饰面收口深化△
• 重点核对下单图纸标高尺寸


淋浴房户型墙面标高尺寸△
• 核对石材下单图例


石材下单图例△
• 石材的彩色排版图运用

02
木饰面深化下单
1)了解五金配置情况与设备尺寸,满足开孔条件与安装使用要求;
2)木饰面收口方式:与其他材料收口方式图纸表示清楚;

3)木纹方向:表面油漆光泽度需要在下单图里表示;
4)充分利用视觉习惯进行安装固定,拒绝明面固定;
5)规格能够统一的尽量统一,产品化下单;
6)如果要求做非常规的做法,要与木饰面厂家沟通。
木饰面阳角板面宽度 L≤600mm 时采用后场固装方式制作,背面加固条不宜太大;条件允许也可通过角铁加固。

木饰面固装式阳角处△
工艺缝内需贴皮油漆处理;安装时阴角处需加与挂条同厚的基层条进行加固,防止变形翘曲。

木饰面固装式阴角处理△

木饰面板块接缝处理△



03
不锈钢深化下单
不锈钢的深化相对简单,需要注意不锈钢与其他饰面的一个收口关系与方式以及安装顺序。
以项目上常规的不锈钢踢脚线做法及深化下单注意事项举例:

深化方案:
1)建议踢脚线用传统方法制作,工艺缝上口包一块角条,这样可以解决了安装难度。如果遇到镀钛不锈钢踢脚线,建议用下图所示1的办法进行深化,有效避免了露白的现象,但也增加了成本。

2)下图方式做法比较美观。弊端是对安装条件要求较高,必需保证足够的空间让踢脚线卡进去。



深化设计优化节点收口
既能改善面层观感,又能保证质量
以下节点收口的优化,在保证质量精度要求前提下,达到了降低安装难度,节省工序,提升面层观感。大家可以更直观地感受到深化设计的重要价值!
01
酒店客房项目节点收口优化方案
•客房床头背景局部


•过道隔断边框与墙面收口



02
木饰面吊顶收口优化

木饰面挂条安装,收口处留凹槽/密拼收口。现场安装时挂条位置可能导致“收口处”拼缝不平整:

可以在现场施工时改变木饰面挂条位置,或要求厂家后场加工时候木饰面开一个插口槽,解决拼缝不平整问题。

优化方式一△

优化方式二△
03
石材门套线条收口优化

考虑到实际安装,图纸中石材的凹槽相接会有难度。

将石材收口做平,工厂加工既省掉2道工序,同时降低加工费。现场安装石材直接碰接即可。
04
乳胶漆与木饰面相接(天花)

收口方式一:
采用带翻边的木饰面挂板,与乳胶漆石膏板留2公分缝隙,平收口。

注:工序上需要将这一块的乳胶漆饰面做成成品,避免安装木饰面再做乳胶漆之后需要保护,造成二次的污染。而且凹槽内在打磨过程中也可能会损伤到木饰面表皮。
收口方式二:

石膏板与木饰面相接,凹槽留在木饰面上。采取这种收口方式,后期“石膏板与饰面相接处 ”产生裂缝的可能性较大,对工艺要求较高。
05
石材与木饰面相接


正常工序:先安装石材,再装木饰面,然后是硬包材料。
而图中节点凹槽留石材上,就会导致安装顺序和“先安装不易损坏部件,再安装易损坏部件”的原则相反。
建议优化方案:


热门资讯
1. 室内设计师必备灵感网站推荐,快来获取作品、模型、素材源吧!
小D整理了一些室内设计师常用的网站,包括作品、模型、搜索、软装等,快来获取灵感和素材吧!
Forma AI: 一款全流程建筑设计和施工工具,驱动规划方案设计。原为挪威产品SpaceMaker,被改进为涵盖室内和景观设计的工具。非常推荐给建筑和室内设计师使用,试试看Maket!
室内设计师必收藏的网站有哪些?
4. 什么是现代简约风?它有什么特点?在空间布局上应该怎么搭配?
现代简约风是一种注重功能性和实用性的室内设计风格,强调简洁明了的线条和基本形状,融合实用性和时尚感,营造出一个整洁、舒适的居住空间。它常常采用...
是比利时室内设计师、古董和艺术品经销商,也是AD100名人堂成员。Axel Vervoordt认为家是一个人与亲友共享私密时光的空间,应该能给人以疗愈和滋养。最...
在这里,小编为大家整理了一系列关于室内设计、软装设计的网站推荐。从设计师作品库到国内一线设计公司官网,从效果图相关网站到资源下载站,再到国外优秀网站和台湾设计网站,以及值得推荐的设计APP,绝对让你眼花缭乱,收获满满灵感。
想要快速上手装修软件,但CAD、3D max太专业?不用担心!这里推荐6款操作简单的装修软件,让小白也能快速设计家居。
以下是12款必备的环境艺术设计软件,助你完成各种设计任务。 1. AutoCAD:用于建筑室内设计等领域的二维和三维模型创建。 2. SketchUp:直观易用的三维建模软件,帮助设计出精美的室内外环境。 3. Revit:专业级建筑信息模型软件,可协助设计全方位的环境布局。 4. Rhino:强大的几何造型工具,用于设计复杂的建筑结构和景观元素。 5. Lumion:实时渲染引擎,可将设计作品以生动的方式展示给客户。 6. Photoshop:广泛应用的图像处理软件,能够增强和编辑设计方案。 7. 3ds Max:出色的三维建模和渲染软件,可创造逼真的环境效果。 8. Sketch: 优秀的矢量绘图工具,支持设计师实时协作和共享创意。 9. Illustrator:专业级矢量图形软件,用于创作精美的插图和图标。 10. InDesign:行业标准的页面设计和排版软件,适用于创作室内设计方案。 11. ArchiCAD:面向建筑师的BIM软件,可实现设计数据的协作和管理。 12. V-Ray:强大的渲染引擎插件,可为设计师呈现出逼真的光影效果。
中国十大软装设计公司排名 软装设计公司哪家好
通过介绍深化设计的背景、深化设计的工作流程、图纸深化的内容和作用。深化设计是未来施工中的重要一个环节,也是工程质量能否保证的一个重要因素,希...
最新文章
同学您好!